$1,350,000
10550 Cinderella Drive, Montgomery, Ohio 45242
Bedrooms
4
Bathrooms
3 FULL, 1 HALF
Square Ft.
3,844
Call Montgomery Home
Brand new opportunity to build with Fry Homes! Ideally located just 10 minutes north of downtown Montgomery, this two-story home offers over 3,800sf plus a full unfinished lower level. Still time to customize this plan to fit your lifestyle!
What you will love
Plan Highlights
- Great Room with Gas Fireplace
- Kitchen with Double Ovens
- Plenty of Flex Space
- Private Study with French Doors
- Luxurious Primary Suite
- Covered Patio
- Two Car Garage
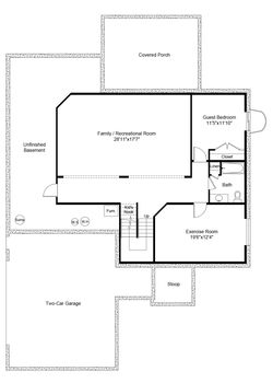
Floor Plan
Map
Sell with Oyler Hines
Also selling a home?
We are thrilled to be able to offer an unforgettable and highly specialized experience that is tailored to you from the beginning of the journey to the very end.
Mike Hines
Team Lead | Head of New Construction Sales

Please Select Date
Please Select Type
Check Out Similar Listings
Confirm your time
Fill in your details and we will contact you to confirm a time.
Contact Form
Welcome to our open house!
We encourage you to take a few seconds to fill out your information so we can send you exclusive updates for this listing!












