Welcome to this inviting 4-bedroom, 3-bath home tucked away on a quiet cul-de-sac in Hamilton Township. Throughout the home, you'll appreciate thoughtful updates such as all-new flooring within the last five years, including brand new carpet installed in 2023. All major mechanicals have been replaced within the past 5-6 years (with the exception of the AC unit). With a spacious layout, modern updates, and a prime location, this home is move-in ready!
Spacious & Bright
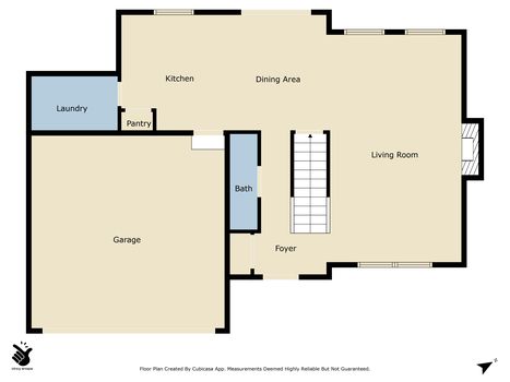
Step inside to a spacious living room filled with natural light and centered around a charming wood-burning fireplace.
Inviting Kitchen
The updated kitchen features granite countertops, stainless steel appliances, and ample cabinetry, with room for a dining table in the eat-in area. A convenient walkout leads to the large, fully fenced backyard, complete with a patio.
Thoughtful Layout
The main level includes a first-floor laundry room for added convenience. Upstairs, the primary suite has a walk-in closet and an updated en suite bath featuring a new shower and flooring.
Also selling a home?
We are thrilled to be able to offer an unforgettable and highly specialized experience that is tailored to you from the beginning of the journey to the very end.

Confirm your time
Fill in your details and we will contact you to confirm a time.
Contact Form
Welcome to our open house!
We encourage you to take a few seconds to fill out your information so we can send you exclusive updates for this listing!



































