Welcome to this custom home in Foundry Park at Three Oaks, the exclusive community hosting HOMEARAMA® 2025. Enjoy an ideal urban lifestyle in Oakley, just blocks from the popular restaurants, bars, and shops on Madison Road, and minutes from the dynamic offerings of Factory 52.
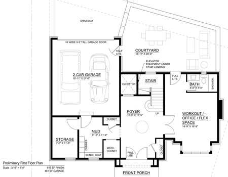
Spanning four stories and 4,124SF, this unique home includes a private courtyard on the ground level, while an elevator ensures effortless access to all floors. The third floor is home to the generous primary suite, a second suite and laundry room. On the 4th floor, you'll find a media loft, additional suite, office, and access to the rooftop deck complete with a fireplace. Built by Classic Living Homes.
About The Foundry
Created for those with a on-the-go active lifestyle, this community boasts 106 homesites surrounded by green space, pocket parks, gathering areas with fire pits, and more encompassed within an artfully crafted private community located in one of Cincinnati’s most iconic and desirable neighborhoods, Oakley.
Also selling a home?
We are thrilled to be able to offer an unforgettable and highly specialized experience that is tailored to you from the beginning of the journey to the very end.

See Similar Listings
Confirm your time
Fill in your details and we will contact you to confirm a time.
Contact Form
Welcome to our open house!
We encourage you to take a few seconds to fill out your information so we can send you exclusive updates for this listing!


















