Don't miss out on the LAST available lot in the Orchard Trail community. Discover your dream home in Orchard Trail by Fry Homes! This charming, tree-lined cul-de-sac property is perfectly situated in the heart of Montgomery.
Montgomery is a highly desirable neighborhood in Cincinnati! You are seconds from fantastic shopping, eateries like Kitchen Social & Livery, and beautiful parks like Swaim Park.
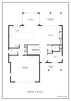
Versatile Floor Plan
- Gourmet Kitchen With Quartz Countertops
- Space For Two Home Offices
- Luxurious Second Floor Primary
- Finished Lower Level with Fitness Room
- Covered Deck & Covered Patio
- Elevator Access
Also selling a home?
We are thrilled to be able to offer an unforgettable and highly specialized experience that is tailored to you from the beginning of the journey to the very end.

Check Out Similar Listings
Confirm your time
Fill in your details and we will contact you to confirm a time.
Contact Form
Welcome to our open house!
We encourage you to take a few seconds to fill out your information so we can send you exclusive updates for this listing!




















































